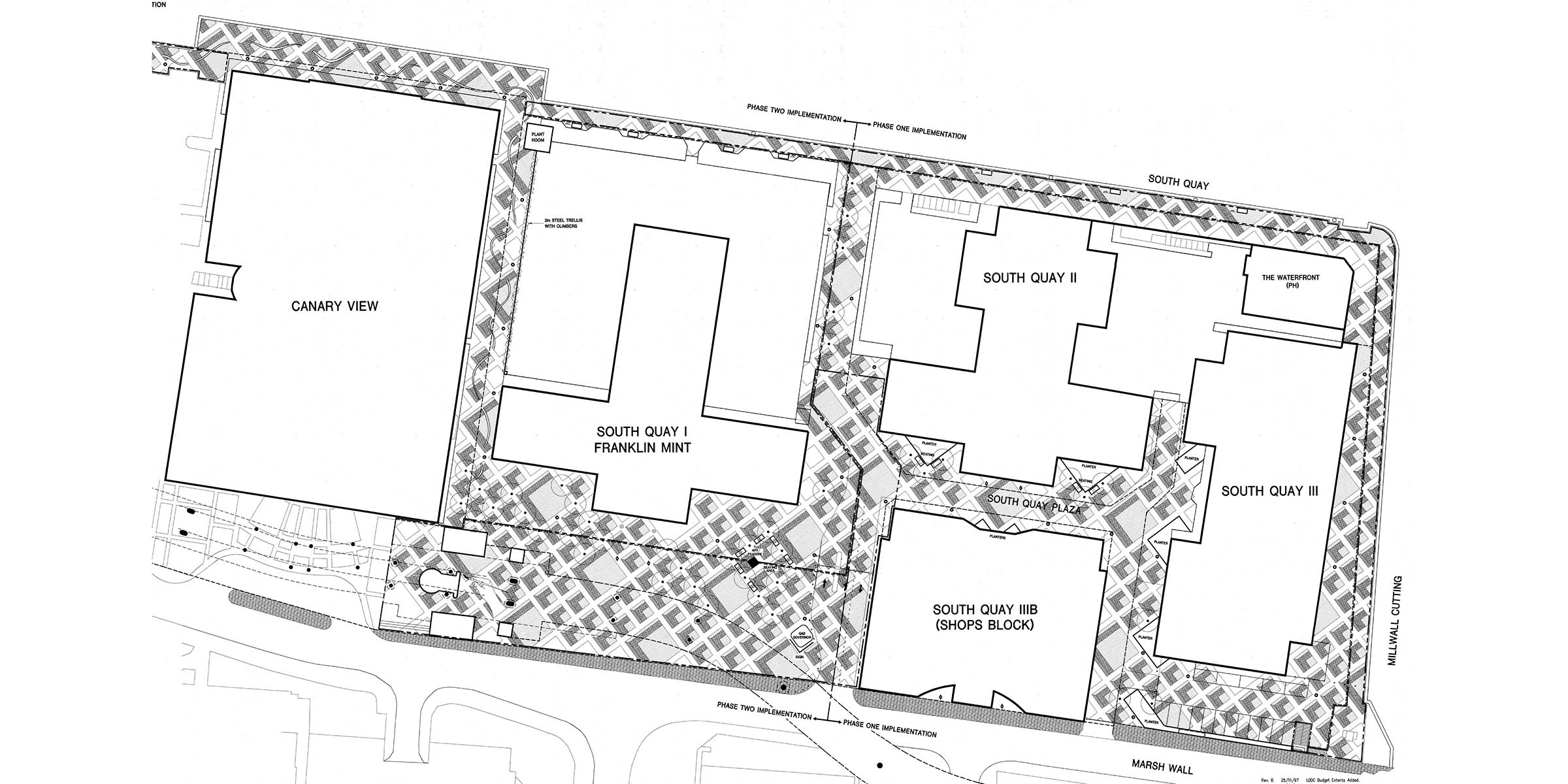
South Quay Wharf, London

National Brick Awards 2000

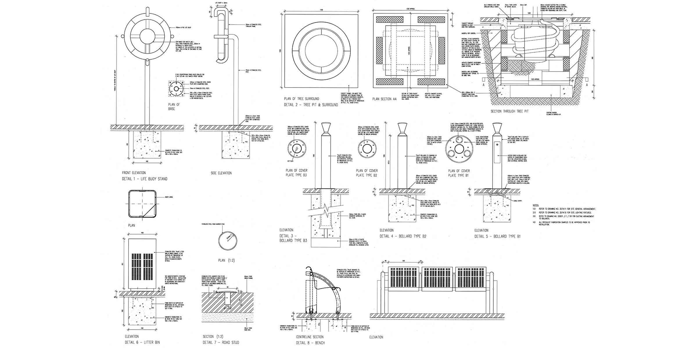
London Docklands regeneration to provide new public realm and dock edge treatment

Categories: ,